Пособие к ТСН 31-312-98 (МГСН 4.10-97) Выпуск 1
Правительство Москвы
Москомархитектура
ПОСОБИЕ к МГСН 4.10-97
ЗДАНИЯ БАНКОВСКИХ УЧРЕЖДЕНИЙ
ВЫПУСК 1
Коммерческие банки
Предисловие
1. Разработано: ЗАО ЦНИИЭП зданий и комплексов культуры, спорта и управления им. Б.С. Мезенцева (канд. арх. Лернер И.И., арх. Шулика И.А., техник Гаврилина В.А.), при участии: арх. Подолянского И.В. (ЦБ РФ), инж. Кобецкого Д.И. (Банкпроект).
2. Подготовлено к изданию управлением перспективного проектирования и нормативов Москомархитектуры (арх. Шалов Л.А., инж. Щипанов Ю.Б.).
3. Согласовано: Ассоциацией Российских банков.
4. Утверждено указанием Москомархитектуры от 8 февраля 1999 года № 9.
1. Введение
1.1. Настоящее пособие разработано в развитие и дополнение МГСН 4.10-97 “Здания банковских учреждений” и будет состоять из двух выпусков.
Выпуск 1. Коммерческие банки.
Выпуск 2. Учреждения Сберегательного банка России.
1.2. В настоящем выпуске на основе МГСН 4.10-97 даны развернутые рекомендации по проектированию зданий центральных офисов и филиалов коммерческих банков с учетом современных требований банковских технологий.
Излагаются требования к функциональному составу и взаимосвязи основных групп помещений, даны рекомендации по планировке как отдельных помещений, так и их функциональных блоков, оборудованию рабочих мест, а также конструктивные требования к ряду помещений с учетом их классификации по защите от взлома.
1.3. Выпуск содержит примеры планировки рабочих мест для различных категорий сотрудников банка, помещений и функциональных групп помещений различного назначения, а также схемы и другие графические материалы.
2. Концептуальные положения проектирования
зданий коммерческих банков
2.1. Большинство крупных коммерческих банков имеет центральные офисы и филиалы в Москве. Кроме того, в Москве размещаются филиалы многих региональных, а также иностранных коммерческих банков.
Коммерческие банки осуществляют финансовое обслуживание небюджетных учреждений, организаций и предприятий страны.
Постепенно в сфере их обслуживания появляются бюджетные организации. Большинство коммерческих банков работает также с некорпоративными клиентами, т.е. с физическими лицами, с населением.
2.2. Основные принципы, закладываемые в концепцию функционирования коммерческого банка:
а) наиболее широкая гамма предоставляемых банком услуг, удобство и безопасность обслуживания клиентов;
б) максимальная сохранность денег и ценностей.
Объемно-планировочные и технологические решения зданий коммерческих банков должны отвечать, прежде всего, именно этим основным принципам.
2.3. Большинство банков предназначено для обслуживания как юридических, так и физических лиц, а перечень услуг, предоставляемых банками своим клиентам достаточно широк.
Услуги, предоставляемые банком юридическим лицам, как правило, включают:
- ведение счетов, в т ч. перевод денег на корреспондентские счета по платежным поручениям заказчиков;
- обналичивание счетов;
- оформление кредитных операций и предоставление кредитов;
- предоставление индивидуальных сейфов;
- предоставление возможности сдавать выручку через автоматический ночной сейф (ночной депозитарий);
- оформление кредитных карт;
- продажа ценных бумаг;
- инвестиционные операции, операции с недвижимостью, осуществляемые через менеджеров банка и другие операции.
Основные услуги, предоставляемые банком физическим лицам:
- открытие и ведение счетов по вкладам и депозитам;
- операции с вложенными денежными средствами по желанию клиента (в частности, оплата коммунальных и других услуг со счета клиента);
- обмен валюты через пункт обмена;
- обмен валют и размен купюр через автоматический обменный пункт (банкомат);
- оформление кредитных карт и получение денег через банкомат со счета по кредитной карте;
- предоставление индивидуальных сейфов и другие операции.
2.4. Современные банковские технологии, получающие все большее распространение в Российских коммерческих банках, в значительной степени направлены на то, чтобы как можно большее число операций осуществлялось без обращения клиентов к операционистам и кассирам, т.е. в автоматическом режиме. Для этого предназначены залы для автоматического обслуживания клиентов, оборудованные системами (ячейками) банковской почты и электронными информационными киосками, банкоматы и электронные кассиры, ночные сейфы и др.
Вопросы устройства и планировки указанных помещений, сравнительно новые для нашей практики проектирования и не нашедшие отражение в МГСН 4.10-97, рассматриваются в настоящем пособии.
2.5. Данное пособие имеет целью показать специфику проектирования коммерческих банков, в связи с чем наибольшее внимание уделяется проектированию помещений, обязательных в банковском технологическом процессе.
Ряд помещений вспомогательного и обслуживающего назначения, не являющихся специфическими для данного типа зданий (такие как конференц-залы, буфеты, ремонтные мастерские и хозяйственные кладовые и т.п.), в пособии не рассматриваются.
3. Функциональное зонирование зданий банков,
группировка и взаимосвязь помещений
3.1. Исходя из основных принципов функционирования коммерческого банка в здании можно выделить два основных укрупненных блока - операционно-кассовый блок и блок, включающий помещения информатизации, офисные помещения и сопутствующие им вспомогательные помещения, а также помещения охраны и службы безопасности.
Операционно-кассовый блок является главным функциональным звеном в зданиях банков и, как правило, составляет до 70% от общего объема здания.
В его состав входят:
а) кассовый узел;
б) кассовый и операционный залы или операционно-кассовый зал (залы) для обслуживания юридических и физических лиц;
в) группа специальных помещений по обслуживанию клиентов (обмена валюты, банкоматов, ночного сейфа, автоматического обслуживания);
г) помещения индивидуальных сейфов (депозитарий).
Для подразделений информации предназначены помещения центральных устройств локальных сетей ЭВМ, помещения аппаратуры связи и др. помещения технологического обеспечения.
Офисные помещения включают кабинеты и приемные руководства банка, помещения отделов, включая помещения бухгалтерии.
К этой группе примыкают помещения вспомогательного и обслуживающего назначения (помещения для совещаний и переговоров, для хранения, обработки и размножения документации, предприятий общественного питания и др.).
Самостоятельной группой являются помещения охраны и службы безопасности.
3.2. По степени доступности помещения банка группируются следующим образом:
I - помещения свободного доступа, включающие вестибюль, холлы для ожидания, кассовый и операционный залы (или операционно-кассовые залы), специальные помещения по обслуживанию клиентов;
II - помещения ограниченного и подлежащего контролю доступа клиентов, сотрудников - депозитарий, помещения информатизации и офисные помещения;
III - помещения, доступ, в которые разрешен строго ограниченному кругу работников банка - кассовый узел и помещения охраны и службы безопасности.
На рис. 3.1. приведена схема взаимосвязи помещений коммерческого банка.

УСЛОВНЫЕ ОБОЗНАЧЕНИЯ
- основные
маршруты посетителей
- основные
маршруты перемещения денег
- основные
технологические связи
- контрольный
тамбур-шлюз
Рис. 3.1. СХЕМА ВЗАИМОСВЯЗИ ПОМЕЩЕНИЙ КОММЕРЧЕСКОГО БАНКА
При проектировании здания банка рекомендуется также учитывать следующие условия:
а) Основной поток посетителей коммерческого банка проходит по маршруту вестибюль - операционный зал - кассовый зал - вестибюль или вестибюль - операционно-кассовый зал - вестибюль. Из этого следует необходимость удобной планировочной взаимосвязи между этими помещениями.
б) Между операционистами и кассирами операционных касс должна быть обеспечена техническая или курьерская связь для оперативной передачи документов. Конкретный способ решения этой задачи должен учитываться при взаиморасположении зон операционистов в операционном или операционно-кассовом зале и операционных касс.
в) Кассовый узел должен проектироваться функционально автономным.
Доступ в него разрешен только работающему в нем персоналу и материально ответственным лицам руководящего состава.
Кассовый узел должен иметь, как правило, один служебный вход, оборудованный тамбуром-шлюзом, который контролируется техническими средствами или находится под наблюдением поста охраны. Запасные эвакуационные выходы, оснащенные устойчивыми к взлому дверями, в нормальном положении закрыты и оборудуются средствами контроля доступа, видеоконтроля и сигнализации.
Посты охраны должны находиться за пределами кассового узла. Доступ в него охрана получает в конце рабочего дня, когда ценности опечатаны.
Нахождение инкассаторов в кассовом узле за пределами бокса для инкассаторских машин и помещений для передачи ценностей не допускается.
г) В целях сокращения путей перемещения денег операционные кассы, кассы пересчета и кладовые (сейфовые) с предкладовыми должны располагаться как можно ближе друг к другу.
д) Помещения для центральных устройств локальных сетей ЭВМ (серверные), телекоммуникаций и криптозащиты рекомендуется располагать компактно.
3.4. Функциональная группировка помещений и требования к их взаимосвязи в значительной степени определяют объемно-планировочное построение здания.
Основным принципом этого построения является четкое функциональное и структурное зонирование.
Функциональное зонирование предполагает выделение в здании зон, предназначенных для обслуживания посетителей, зон с ограниченным доступом и недоступных для посторонних.
Структурное зонирование предполагает разграничение зон с различной конструктивно-планировочной структурой - зальной и мелкоячеистой.
3.5. В зданиях коммерческих банков помещениями, предназначенными для обслуживания посетителей, являются вестибюль, операционный и кассовый залы (или единый операционно-кассовый зал), а также специальные помещения для клиентов (см. п. 3.1.в). Кроме того, должен быть обеспечен доступ посетителей в депозитарий и в ряд офисных помещений (к руководству, в бухгалтерию, в кредитный и др. отделы). Доступ посторонних в остальные помещения банка, особенно в кассовый узел должен быть исключен.
Необходимость такого функционального зонирования определяет требования к размещению групп помещений в здании:
- кассовый зал, тесно связанный с кассовым узлом, рекомендуется размещать на первом этаже; он должен иметь вход для клиентов непосредственно из вестибюля или операционного зала;
- операционный зал должен быть в удобной связи с вестибюлем и кассовым залом; при размещении его на втором этаже или выше он должен находиться вблизи узла вертикальных транспортных коммуникаций;
- посещаемые клиентами офисные помещения должны быть расположены таким образом, чтобы в них можно было попасть из вестибюля или из клиентской зоны операционного (операционно-кассового) зала непосредственно или по лестнице (лифтом);
- рекомендуется предусматривать непосредственную связь депозитария и специальных помещений по обслуживанию клиентов с вестибюлем, минуя операционный и кассовый залы.
Рекомендуется следующее размещение групп помещений по этажам:
- кассовый блок, связанный с обслуживанием посетителей, загрузкой кладовой ценностей и инкассацией, рекомендуется размещать в первом этаже (часть помещений может размещаться в подвальном или цокольном этажах);
- операционный блок может размещаться на первом или втором этаже; при организации операционно-кассового зала его желательно располагать на первом этаже;
- офисные помещения могут находиться на втором или вышележащих этажах;
- депозитарий рекомендуется размещать в первом или подвальном (цокольном) этаже.
3.6. Для зданий коммерческих банков характерно структурное зонирование, т.е. выделение зон (части этажа, целого этажа, блока) с различной конструктивно-планировочной структурой, поскольку в них имеются зальные помещения - операционный и кассовый залы (или операционно-кассовые залы), которые могут быть большепролетными или с промежуточными опорами, и помещения небольших размеров, создающие ячеистую структуру - помещения кассового узла, офисные и вспомогательные помещения.
3.7. Основным элементом функциональной структуры коммерческого банка является операционно-кассовый блок, а размещение наиболее крупных его помещений - операционного и кассового залов в значительной степени определяет характер объемно-планировочной структуры здания. Наиболее характерны следующие варианты взаимного расположения операционного и кассового залов:
А - операционный и кассовый залы размещаются на одном (первом этаже); они могут располагаться по обе стороны от вестибюля или холла, или смежно в глубине здания за вестибюлем (в этом случае наиболее рациональна организация единого операционно-кассового зала);
Б - операционный и кассовый зал размещаются на разных этажах (передача документов из операционного зала в кассовый осуществляется в этом случае при помощи технических средств); они могут располагаться как один над другим, так и в разных частях здания.
При варианте “А” в зависимости от способа размещения залов по отношению к другим помещениям и формы самих залов здание в плане может иметь компактную, протяженную или сложную форму.
При варианте “Б”, как правило, образуются здания с компактной формой плана.
Размещение операционного и кассового залов как на одном этаже, так и на разных этажах одинаково оправдано с точки зрения технологии банковской работы.
Применение компактной, протяженной или сложной формы плана здания должно определяться условиями конкретной градостроительной ситуации.
При наличии небольшого земельного участка или потребности сокращения площади застройки здания целесообразно применение планировочной схемы по варианту "Б" с размещением офисных помещений, не связанных в своей работе с посетителями, на третьем и вышележащих этажах.
При наличии достаточно большого свободного участка возможно использование планировочной схемы по варианту “А” с размещением большинства помещений банка в первом этаже.
4. Требования к помещениям кассового и
операционного блоков зданий банков
4.1.Кассовый узел.
Согласно МГСН 4.10-97 кассовый узел коммерческого банка включает следующие основные помещения:
- кладовую ценностей с предкладовой или сейфовую комнату с предсейфовой;
- операционные кассы (кассовые кабины);
- кассы пересчета банкнот и монет;
- вечернюю кассу;
- помещение по приему-выдаче денег инкассаторам и бокс для инкассаторских машин;
- комнаты для хранения личных вещей и отдыха кассиров.
4.1.1. В здании коммерческого банка могут быть устроены одна или несколько кладовых ценностей для хранения отечественной и иностранной валюты и ценных бумаг. Как правило, каждая из кладовых должна иметь собственную предкладовую. В случаях, когда это целесообразно, особенно в условиях реконструкции, одна предкладовая может предусматриваться на две и более кладовых. Возможно также в пределах одной защитной оболочки кладовой выделение отсеков для разных видов хранения при помощи решетчатых или глухих перегородок.
Кладовые ценностей оборудуются стационарными металлическими стеллажами с решетчатыми дверьми или специальными металлическими шкафами для хранилищ.
В крупных
кладовых ценностей (площадью более 100 м
)
возможно применение контейнерного хранения ценностей на передвижных
платформах или хранение на передвижных стеллажах для компактного
хранения.
На рис. 4.1 - 4.4 приведены примеры планировки кладовых с предкладовыми при различных способах хранения ценностей.

|
А - предкладовая |
4 - модуль с сургучницей и вытяжкой |
|
Б - смотровой коридор |
5 - стул рабочий подъемно-поворотный |
|
В - кладовая ценностей |
6 - закрытые тележки /передвижные сейфы/ для транспортировки денег |
|
1 - стационарные металлические стеллажи с решетчатыми дверцами |
7 - решетчатая металлическая дверь |
|
2 - стол рабочий |
8 - бронедверь |
|
3 - тумба |
9 - решетчатые перегородки с запирающимися дверьми /для выделения зон в кладовой/ |
Рис. 4.1. КЛАДОВАЯ ЦЕННОСТЕЙ С ПРЕДКЛАДОВОЙ
/ВАРИАНТ 1/

А - предкладовая
Б - смотровой коридор
В - кладовая ценностей
1 - стационарные металлические стеллажи с решетчатыми дверцами
2 - стол подсобный
3 - закрытые тележки /передвижные сейфы/ для транспортировки денег
4 - стул рабочий подъемно-поворотный
5 - стол рабочий
6 - тумба
7 - модуль с сургучницей и вытяжкой
8 - решетчатая металлическая дверь
9 - бронедверь
Рис. 4.2. КЛАДОВАЯ ЦЕННОСТЕЙ С ПРЕДКЛАДОВОЙ
/ВАРИАНТ 2/

|
А - предкладовая |
4 - тумба для оргтехники |
|
Б - смотровой коридор |
5 - модуль с сургучницей и вытяжкой |
|
В - кладовая ценностей |
6 - стул рабочий подъемно-поворотный |
|
1 - контейнеры для хранения ценностей |
7 - тележка для транспортировки контейнеров |
|
2 - передвижные платформы для контейнеров |
8 - решетчатая металлическая дверь |
|
3 - стол рабочий |
9 - бронедверь |
Рис. 4.3. КЛАДОВАЯ ЦЕННОСТЕЙ С ПРЕДКЛАДОВОЙ
/ВАРИАНТ 3/

|
А - предкладовая |
4 - модуль с сургучницей и вытяжкой |
|
Б - смотровой коридор |
5 - стул рабочий подъемно-поворотный |
|
В - кладовая ценностей |
6 - тумба выкатная |
|
1 - передвижные стеллажи для хранения ценностей |
7 - закрытая тележка /передвижной сейф/ для транспортировки ценностей |
|
2 - стол рабочий |
8 - решетчатая металлическая дверь |
|
3 - тумба для оргтехники |
9 - бронедверь |
Рис. 4.4. КЛАДОВАЯ ЦЕННОСТЕЙ С ПРЕДКЛАДОВОЙ
/ВАРИАНТ 4/
В соответствии с требованием ЦБ РФ для коммерческих банков (Положение “О порядке ведения кассовых операций в кредитных организациях на территории Российской Федерации” № 56 от 25 марта 1997 г.), по которому защитная оболочка кладовой ценностей должна иметь класс защиты от взлома не ниже V по ГОСТ Р 50862-96, и по аналогии с требованиями к кладовым ценностей для расчетно-кассовых центров устойчивость к взлому защитной оболочки кладовой должна быть не ниже следующих классов:
V - в кладовых
площадью до 100 м
;
VI - в кладовых
площадью 100 - 200 м
;
VII - в кладовых
площадью свыше 200 м
.
Толщину конструкций защитной оболочки кладовой и других ограждающих конструкций в зависимости от материала и требуемого класса устойчивости к взлому см. в Приложении 1. При организации сейфовой комнаты для хранения ценностей должны применяться несгораемые сейфы класса устойчивости к взлому не ниже IV (ГОСТ Р 50862-96) и имеющие соответствующий сертификат. Они могут размещаться в помещениях, не оборудованных фибробетонной оболочкой и бронедверью.
На рис. 4.5 приведена планировка сейфовой комнаты с предсейфовой.

|
А - сейфовая |
4 - стул подъемно-поворотный |
|
Б - предсейфовая |
5 - закрытая тележка /передвижной сейф/ для перевозки ценностей |
|
1 - сейф |
6 - металлическая дверь сплошная |
|
2 - стол рабочий |
7 - дверь решетчатая |
|
3 - тумба |
|
Рис. 4.5. СЕЙФОВАЯ КОМНАТА СПРЕДСЕЙФОВОЙ
4.1.2. Операционные кассы (кассовые кабины) могут выходить своим фронтом непосредственно в кассовый зал или же перед каждой кассой могут организовываться индивидуальные кабины для пересчета денег клиентами.
На рис. 4.6-4.9 приведены примеры организации нескольких операционных касс: кассовой кабины со стандартным набором оборудования, кассовой кабины уменьшенной площади для стесненных условий реконструкции, операционной кассы с дополнительным боковым окном для выдачи крупных сумм наличности непосредственно в помещение пересчета денег клиентами и кассовой кабины увеличенной площади для старшего кассира.

|
1 - рабочий стол |
7 - сортировка |
|
2 - компьютерный стол |
8 - машина для счета банкнот |
|
3 - стул подъемно-поворотный |
9 - прибор для контроля банкнот |
|
4 - передвижной сейф /закрытая тележка/ для транспортировки денег |
10 - переговорное устройство |
|
5 - сейф |
11 - передаточный лоток в пулезащитном исполнении |
|
6 - компьютер |
|
Рис. 4.6. ОПЕРАЦИОННАЯ КАССА

|
1 - рабочий стол |
7 - сортировка |
|
2 - компьютерный стол |
8 - машина для счета банкнот |
|
3 - стул подъемно-поворотный |
9 - прибор для контроля банкнот |
|
4 - передвижной сейф /закрытая тележка/ для транспортировки денег |
10 - переговорное устройство |
|
5 - сейф |
11 - передаточный лоток в пулезащитном исполнении |
|
6 - компьютер |
|
Рис. 4.7. ОПЕРАЦИОННАЯ КАССА ДЛЯ СТЕСНЕННЫХ УСЛОВИЙ

|
1 - рабочий стол |
7 - сортировка |
|
2 - компьютерный стол |
8 - машина для счета банкнот |
|
3 - стул подъемно-поворотный |
9 - прибор для контроля банкнот |
|
4 - передвижной сейф /закрытая тележка/ для транспортировки денег |
10 - переговорное устройство |
|
5 - сейф |
11 - передаточный лоток в пулезащитном исполнении или контейнер для передачи крупных сумм денежной наличности |
|
6 - компьютер |
|
Рис. 4.8. ОПЕРАЦИОННАЯ КАССА С ДОПОЛНИТЕЛЬНЫМ
БОКОВЫМ ЛОТКОМ ДЛЯ ВЫДАЧИ ДЕНЕГ

|
1 - рабочий стол |
8 - машина для счета банкнот |
|
2 - компьютерный стол |
9 - прибор для контроля банкнот |
|
3 - стул подъемно-поворотный |
10 - стол подсобный |
|
4 - передвижной сейф /закрытая тележка/ для транспортировки денег |
11 - стул |
|
5 - сейф |
12 - факс |
|
6 - компьютер |
13 - переговорное устройство |
|
7 - сортировка |
11 - передаточный лоток в пулезащитном исполнении |
Рис. 4.9. ОПЕРАЦИОННАЯ КАССА ДЛЯ СТАРШЕГО КАССИРА
На рис. 4.10 и 4.11 показаны операционные кассы с индивидуальными кабинами для клиентов.


|
А - операционная касса |
4 - передвижной сейф /закрытая тележка/ для транспортировки денег |
|
Б - кабина для клиентов |
5 - компьютерный стол |
|
1 - стол рабочий |
6 - сейф |
|
2 - передаточный лоток в пулезащитном исполнении |
7 - машина для счета банкнот |
|
3 - стул рабочий подъемно-поворотный |
8 - переговорное устройство |
Рис. 4.10. ОПЕРАЦИОННАЯ КАССА С ИНДИВИДУАЛЬНОЙ
КАБИНОЙ ДЛЯ КЛИЕНТОВ


|
А - операционная касса |
5 - передвижной сейф /закрытая тележка/ для транспортировки денег |
|
Б - кабина для клиентов |
6 - стул рабочий подъемно-поворотный |
|
1 - стол рабочий |
7 - стол подсобный |
|
2 - передаточный лоток в пулезащитном исполнении |
8 - металлический шкаф /сейф/ |
|
3 - переговорное устройство |
9 - машина для счета банкнот |
|
4 - компьютерный стол |
10 - компьютер |
Рис. 4.11. ОПЕРАЦИОННАЯ КАССА ДЛЯ СТАРШЕГО
КАССИРА С ИНДИВИДУАЛЬНОЙ КАБИНОЙ ДЛЯ КЛИЕНТОВ
4.1.3. В коммерческих банках должны, как правило, предусматриваться отдельные помещения для кассы пересчета банкнот и для кассы пересчета монет.
В кассе пересчета банкнот работают сотрудники, занимающиеся собственно пересчетом денежных билетов, их сортировкой и вакуумной упаковкой. Рабочее место пересчетчиков банкнот включает стол рабочий, на котором размещается машина для счета банкнот и машина для обандероливания пачек денег, стул рабочий подъемно-поворотный и закрытую тележку (передвижной сейф) для транспортировки денег. В помещении для пересчета банкнот требуется также установка настольного вакуумного упаковщика обандероленных пачек в брикеты, покрытые полиэтиленовой пленкой, а также настольного банковского пресса. Для установки этого оборудования требуется дополнительный стол, а также дополнительная тележка для транспортировки брикетов.
Рабочее место пересчетчика монет включает 2 рабочих стола, на одном из которых размещается машина для счета монет, на другом - мешки с монетами, предназначенными для пересчета. Кроме того, в рабочее место входит стул подъемно-поворотный и закрытая тележка-сейф для перевозки монет.
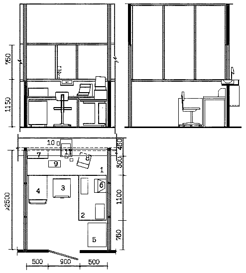
Рабочие места кассиров - пересчетчиков приведены на рис. 4.12-4.17. Примеры планировки касс пересчета банкнот и монет с различной численностью сотрудников приведены на рис. 4.18-4.22.

|
1 - стол рабочий |
4 - машина для счета банкнот |
|
2 - стул подъемно-поворотный |
5 - машина для обандероливания |
|
3 - закрытая тележка /передвижной сейф/ для транспортировки денег |
6 - ограждение из матового стекла |
Рис. 4.12. РАБОЧЕЕ МЕСТО СОТРУДНИКА КАССЫ ПЕРЕСЧЕТА
БАНКНОТ /ВАРИАНТ 1/

|
1 - стол кассовый для пересчета |
5 - закрытая тележка /передвижной сейф/ для транспортировки денег |
|
2 - машина для счета банкнот |
6 - контейнер для мусора |
|
3 - машина для обандероливания |
7 - ограждение из матового стекла |
|
4 - стул рабочий подъемно-поворотный |
|
Рис. 4.13. РАБОЧЕЕ МЕСТО СОТРУДНИКА КАССЫ
ПЕРЕСЧЕТА БАНКНОТ /ВАРИАНТ 2/

|
1 - машина для пересчета и сортировки денег /типа DLR 3700/ |
5 - стул рабочий подъемно-поворотный |
|
2 - машина для обандероливания |
6 - закрытая тележка /передвижной сейф/ для транспортировки денег |
|
3 - стол рабочий /120х75х75 см/ |
7 - контейнер для мусора |
|
4 - стол рабочий /150х75х75 см/ |
|
Рис. 4.14. РАБОЧЕЕ МЕСТО ОПЕРАТОРА МАШИНЫ ДЛЯ
ПЕРЕСЧЕТА И СОРТИРОВКИ БАНКНОТ

|
1 - стол рабочий |
3 - стул подъемно-поворотный |
|
2 - закрытая тележка /передвижной сейф/ для транспортировки денег |
4 - машина для сортировки банкнот |
Рис. 4.15. РАБОЧЕЕ МЕСТО ОПЕРАТОРА МАШИНЫ ДЛЯ
СОРТИРОВКИ БАНКНОТ

|
1 - вакуумный упаковщик |
4 - закрытая тележка /передвижной сейф/ для транспортировки денег |
|
2 - пресс банковский настольный |
5 - стул подъемно-поворотный |
|
3 - стол специальный для вакуумного упаковщика |
|
Рис. 4.16. РАБОЧЕЕ МЕСТО ДЛЯ ВАКУУМНОЙ
УПАКОВКИ БАНКНОТ

|
1 - рабочий стол |
4 - стол |
|
2 - тумба |
5 - стул рабочий подъемно-поворотный |
|
3 - закрытая тележка /передвижной сейф/ для транспортировки ценностей |
6 - машина для счета и сортировки монет |
Рис. 4.17. РАБОЧЕЕ МЕСТО СОТРУДНИКА КАССЫ
ПЕРЕСЧЕТА МОНЕТ


ВАРИАНТ 1 -
помещение площадью 16 м
на 2 кассира-пересчетчика;
ВАРИАНТ 2 -
помещение площадью 18 м
на 2 кассира-пересчетчика;
ВАРИАНТ 3 -
помещение площадью 24 м
на 3 кассира-пересчетчика;
ВАРИАНТ 4 -
помещение площадью 36 м
на 5 кассиров-пересчетчиков
1 - рабочее место сотрудника кассы пересчета - см. рис. 4.12
2 - рабочее место для вакуумной упаковки банкнот - см. рис. 4.16
3 - шкаф металлический
4 - стол подсобный
5 - контейнер для мусора
Рис. 4.18. ПОМЕЩЕНИЯ КАСС ПЕРЕСЧЕТА БАНКНОТ
НА 2, 3 И 5 РАБОЧИХ МЕСТ


ВАРИАНТ 1 -
помещение площадью 16 м
на 2 кассира-пересчетчика;
ВАРИАНТ 2 -
помещение площадью 18 м
на 3 кассира-пересчетчика;
ВАРИАНТ 3 -
помещение площадью 36 м
на 5 кассиров-пересчетчиков
1 - рабочее место сотрудника кассы пересчета - см. рис. 4.13
2 - рабочее место для вакуумной упаковки банкнот - см. рис. 4.16
3 - шкаф металлический
4 - стол подсобный
Рис. 4.19. ПОМЕЩЕНИЕ КАСС ПЕРЕСЧЕТА БАНКНОТ
НА 2, 3 И 5 РАБОЧИХ МЕСТ


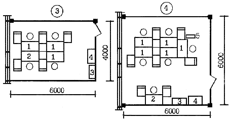
ВАРИАНТ 1 - помещение на 4 машины
ВАРИАНТ 2 - помещение на 2 машины
ВАРИАНТ 3 - помещение на 3 машины
1 - рабочее место оператора машины для пересчета и сортировки банкнот - см. рис. 4.14
2 - стол для вакуумного упаковщика
3 - закрытая тележка /передвижной сейф/ для транспортировки денег
4 - стул подъемно-поворотный
5 - металлический шкаф
Рис. 4.20. ПОМЕЩЕНИЯ КАСС ПЕРЕСЧЕТА БАНКНОТ,
ОСНАЩЕННЫЕ МАШИНАМИ ТИПА DLR 3700

ВАРИАНТ 1 -
помещение площадью 36 м
на 7 кассиров-пересчетчиков
ВАРИАНТ 2 -
помещение площадью 72 м
на 10 кассиров-пересчетчиков
1 - рабочее место сотрудника кассы пересчета - см. рис. 4.12
2 - рабочее место для вакуумной упаковки банкнот - см. рис. 4.16
3 - рабочее место оператора машины для сортировки банкнот - см. рис. 4.15
4 - контейнер для мусора
5 - шкаф металлический
Рис. 4.21. ПОМЕЩЕНИЯ КАСС ПЕРЕСЧЕТА БАНКНОТ
НА 7 И 10 РАБОЧИХ МЕСТ


ВАРИАНТ
1 - помещение площадью 9,6 м
на 1 рабочее место
ВАРИАНТ
2 - помещение площадью 12 м
на 2 рабочих места
ВАРИАНТ
3 - помещение площадью 18 м
на 2 рабочих места
1 - рабочее место сотрудника кассы пересчета монет - см. рис. 4.17
2 - контейнер для мусора
3 - шкаф металлический
Рис. 4.22. ПОМЕЩЕНИЯ КАСС ПЕРЕСЧЕТА МОНЕТ
НА 1 И 2 РАБОЧИХ МЕСТА
Как правило, кассы пересчета работают в течение всего рабочего дня. Первую половину дня кассы пересчета обрабатывают денежную массу, поступившую из вечерней кассы, вторую половину дня - поступившую через операционные кассы в течение операционного дня.
4.1.4. Вечерняя касса предназначена для временного (ночного) хранения ценностей, поступающих от инкассаторов в вечернее время, когда основные кладовые ценностей уже опечатаны и поставлены на охрану. Она может быть запроектирована в нескольких вариантах:
а) Вечерняя касса в составе кладовой и кабины кассира, перед которой образуется предкассовая зона для инкассаторов. Кладовая вечерней кассы имеет ограждающие конструкции в виде защитной фибробетонной оболочки.
б) Вечерняя касса в виде специальной комнаты, оснащенной несгораемыми сейфами и имеющей небольшую предсейфовую.
В случае, когда кассир вечерней кассы принимает деньги у инкассаторов через помещение передачи ценностей при боксе для инкассаторских машин, вместо кабины кассира вечерней кассы перед кладовой временного хранения предусматривается небольшая предкладовая.
В случае, если коммерческий банк имеет собственную инкассаторскую службу и в здании предусматриваются специальные помещения для ее размещения, то сейфовая комната для хранения вечерней выручки в инкассаторских мешках может быть организована в зоне инкассаторской службы.
